Espace propriétaire
fr

Votre recherche

Paris (75011)

Local professionnel - 50 m²

Appartement transformable – Paris 11 – Secteur Charonne

530 000 €
Ref : 1226P2
Découvrir le bien

À proximité immédiate des métros Charonne et Faidherbe-Chaligny, au sein d’une résidence bien entretenue des années 1974 avec ascenseur, découvrez ce bien lumineux et ensoleillé actuellement aménagé en cabinet dentaire.

Le bien peut accueillir une profession libérale (médicale, paramédicale, psychologue, orthophoniste, etc.) ou être réaménagé en appartement (possible configuration en 2 ou 3 pièces selon projet).

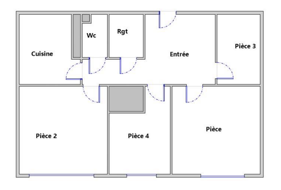
Situé au 1er étage, il offre une surface fonctionnelle et modulable de 49,14m² carrez et se compose de :

  • une entrée avec espace d’accueil / secrétariat,

  • deux salles de consultation,

  • une salle d’attente,

  • une pièce de rangement,

  • un débarras,

  • des toilettes indépendantes,

  • et un espace cuisine d’appoint.

L’environnement est vivant et recherché, avec de nombreux commerces, écoles et transports à proximité immédiate.

Chauffage collectif au gaz-- Climatisation – Ascenseur-- Gardien – Local sécurisé – Cave.

Possibilité d’acquérir un box en sus.

Un bien rare dans le 11, idéal pour une installation professionnelle ou un investissement patrimonial avec potentiel de transformation.

 

Les informations sur les risques auxquels ce bien est exposé sont disponibles sur le site Géorisques : www.georisques.gouv.fr.H&B Immobilier, enregistrée au RCS de Paris au numéro 882 014 889.

TRAD_ZEPHYR_Caracteristique TRAD_ZEPHYR_Valeurs
Type de transac Local professionnel
Code postal 75011
Surface loi Carrez (m²) 49,14 m²
Nombre de chambre(s) 2
Nombre de pièces 3
Etage 1
Nombre de niveaux 1
Ascenseur OUI
Vue SUD / SUD-EST
Superficie (m²) 50
TRAD_ZEPHYR_Caracteristique TRAD_ZEPHYR_Valeurs
Cuisine Sans
Mode de chauffage Gaz
Type de chauffage Chaudiere
Format de chauffage Collectif
Balcon NON
Terrasse NON
Nombre de garage 1
Cave OUI
Surface cave (m²) 4
Exposition Sud-Est
Année de construction 1974
Quartier Charonne
TRAD_ZEPHYR_Caracteristique TRAD_ZEPHYR_Valeurs
Copropriété OUI
Lot n° 5, 231
nombre de lots 51
Quote Part annuelle des charges 2 800 €
plan de sauvegarde NON
statut du syndic pas de procédure en cours
TRAD_ZEPHYR_Caracteristique TRAD_ZEPHYR_Valeurs
Prix de vente honoraires inclus 530 000 €
Charges 233 €
DPE GES
  • Commerces et santé
  • Loisirs
  • Ecoles
  • Transports
  • Pratique
Contacter pour ce bien
L'agence
Téléphone 01 85 73 48 44
Adresse
44 rue Popincourt 75011 Paris

* Champ obligatoire

Les informations recueillies sur ce formulaire sont enregistrées dans un fichier informatisé par La Boite Immo agissant comme Sous-traitant du traitement pour la gestion de la clientèle/prospects de l'Agence / du Réseau qui reste Responsable du Traitement de vos Données personnelles. La base légale du traitement repose sur l'intérêt légitime de l'Agence / du Réseau. Elles sont conservées jusqu'à demande de suppression et sont destinées à l'Agence / au Réseau. Conformément à la loi « informatique et libertés », vous disposez des droits d’accès, de rectification, d’effacement, d’opposition, de limitation et de portabilité de vos données. Vous pouvez retirer votre consentement à tout moment en contactant directement l’Agence / Le Réseau. Consultez le site https://cnil.fr/fr pour plus d’informations sur vos droits. Si vous estimez, après avoir contacté l'Agence / le Réseau, que vos droits « Informatique et Libertés » ne sont pas respectés, vous pouvez adresser une réclamation à la CNIL. Nous vous informons de l’existence de la liste d'opposition au démarchage téléphonique « Bloctel », sur laquelle vous pouvez vous inscrire ici : https://www.bloctel.gouv.fr Dans le cadre de la protection des Données personnelles, nous vous invitons à ne pas inscrire de Données sensibles dans le champ de saisie libre.
Ce site est protégé par reCAPTCHA, les Politiques de Confidentialité et les Conditions d'Utilisation de Google s'appliquent.

Découvrir nos outils