Espace propriétaire
fr

Votre recherche

Paris (75011)

3 pièces - 50 m²

Local professionnel / Appartement transformable – Paris 11? – Secteur Charonne

550 000 €
Ref : 1226
Découvrir le bien

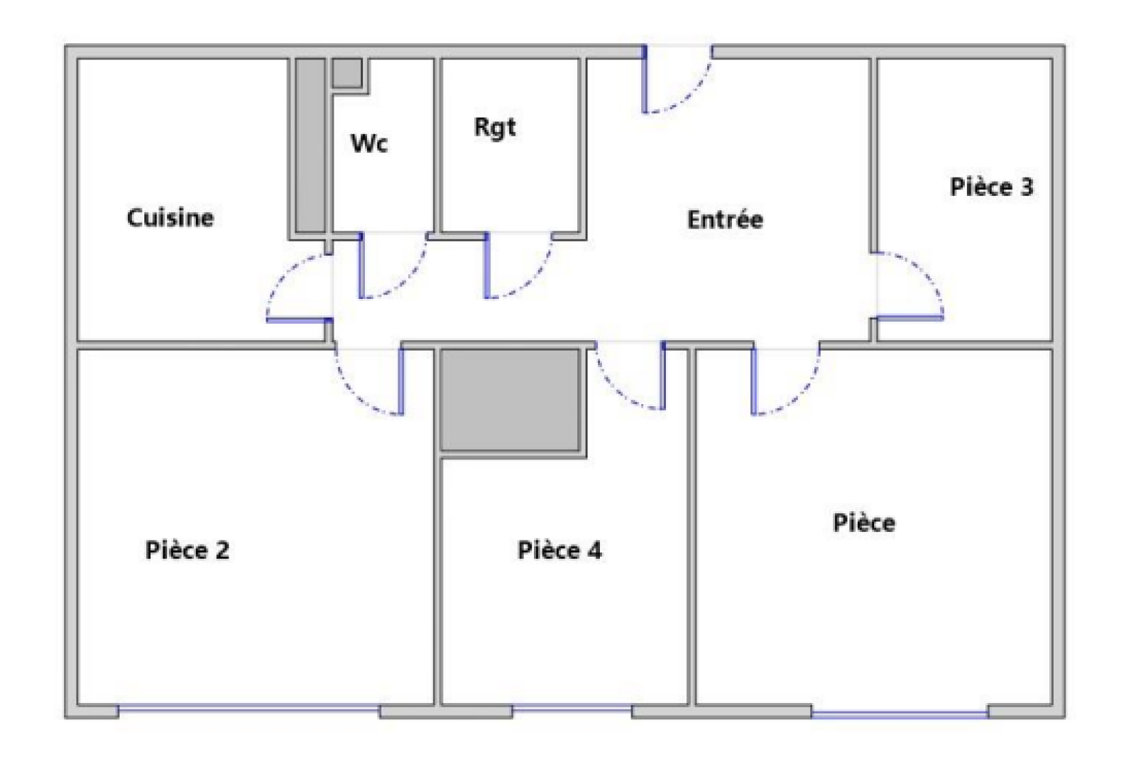
À proximité immédiate des métros Charonne et Faidherbe-Chaligny, au sein d’une résidence bien entretenue des années 1974 avec ascenseur, découvrez ce local lumineux et meme ensoleillé actuellement aménagé en cabinet dentaire.

Situé au 1er étage, il offre une surface fonctionnelle et modulable de 49,14m² carrez et se compose de :

  • une entrée avec espace d’accueil / secrétariat,

  • deux salles de consultation,

  • une salle d’attente,

  • une pièce de rangement,

  • un débarras,

  • des toilettes indépendantes,

  • et un espace cuisine d’appoint.

Le bien peut accueillir une profession libérale (médicale, paramédicale, psychologue, orthophoniste, etc.) ou être réaménagé en appartement (possible configuration en 2 ou 3 pièces selon projet).

L’environnement est vivant et recherché, avec de nombreux commerces, écoles et transports à proximité immédiate.

Chauffage collectif au gaz-- Climatisation – Ascenseur-- Gardien – Local sécurisé – Cave.

Possibilité d’acquérir un box en sus.

Un bien rare dans le 11, idéal pour une installation professionnelle ou un investissement patrimonial avec potentiel de transformation.

Les informations sur les risques auxquels ce bien est exposé sont disponibles sur le site Géorisques : www.georisques.gouv.fr.H&B Immobilier, enregistrée au RCS de Paris au numéro 882 014 889.

TRAD_ZEPHYR_Caracteristique TRAD_ZEPHYR_Valeurs
Code postal 75011
Surface habitable (m²) 50 m²
Surface loi Carrez (m²) 49,14 m²
Nombre de chambre(s) 2
Nombre de pièces 3
Etage 1
Nombre de niveaux 1
Ascenseur OUI
Vue SUD / SUD-EST
TRAD_ZEPHYR_Caracteristique TRAD_ZEPHYR_Valeurs
Cuisine Sans
Mode de chauffage Gaz
Type de chauffage Chaudiere
Format de chauffage Collectif
Balcon NON
Terrasse NON
Nombre de garage 1
Cave OUI
Surface cave (m²) 4
Exposition Sud-Est
Année de construction 1974
TRAD_ZEPHYR_Caracteristique TRAD_ZEPHYR_Valeurs
Copropriété OUI
Lot n° 5, 231
nombre de lots 34
Quote Part annuelle des charges 2 800 €
plan de sauvegarde NON
statut du syndic pas de procédure en cours
TRAD_ZEPHYR_Caracteristique TRAD_ZEPHYR_Valeurs
Prix de vente honoraires TTC inclus 550 000 €
Charges 233 €
Taxe foncière annuelle 1 099 €
DPE GES
  • Commerces et santé
  • Loisirs
  • Ecoles
  • Transports
  • Pratique
Contacter pour ce bien
L'agence
Téléphone 01 85 73 48 44
Adresse
44 rue Popincourt 75011 Paris

* Champ obligatoire

Les informations recueillies sur ce formulaire sont enregistrées dans un fichier informatisé par La Boite Immo agissant comme Sous-traitant du traitement pour la gestion de la clientèle/prospects de l'Agence / du Réseau qui reste Responsable du Traitement de vos Données personnelles.
La base légale du traitement repose sur l’intérêt légitime de l'Agence / du Réseau.
Elles sont conservées jusqu'à demande de suppression et sont destinées à l'Agence / au Réseau.
Conformément à la loi « informatique et libertés », vous pouvez exercer votre droit d'accès aux données vous concernant et les faire rectifier en contactant l'Agence / le Réseau.
Si vous estimez, après avoir contacté l'Agence / le Réseau, que vos droits « Informatique et Libertés » ne sont pas respectés, vous pouvez adresser une réclamation à la CNIL.
Nous vous informons de l’existence de la liste d'opposition au démarchage téléphonique « Bloctel », sur laquelle vous pouvez vous inscrire ici : https://www.bloctel.gouv.fr 
Dans le cadre de la protection des Données personnelles, nous vous invitons à ne pas inscrire de Données sensibles dans le champ de saisie libre
Ce site est protégé par reCAPTCHA, les Politiques de Confidentialité et les Conditions d'Utilisation de Google s'appliquent.

Découvrir nos outils