Espace propriétaire
fr

Votre recherche

Paris (75011)

5 pièces - 138 m²

RICHARD LENOIR / SAINT AMBROISE

1 100 000 €
Ref : 1275
Découvrir le bien

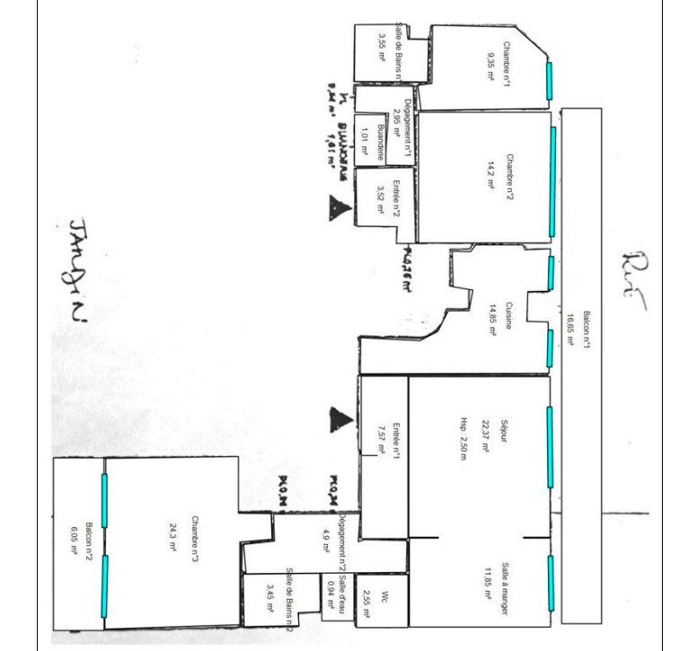
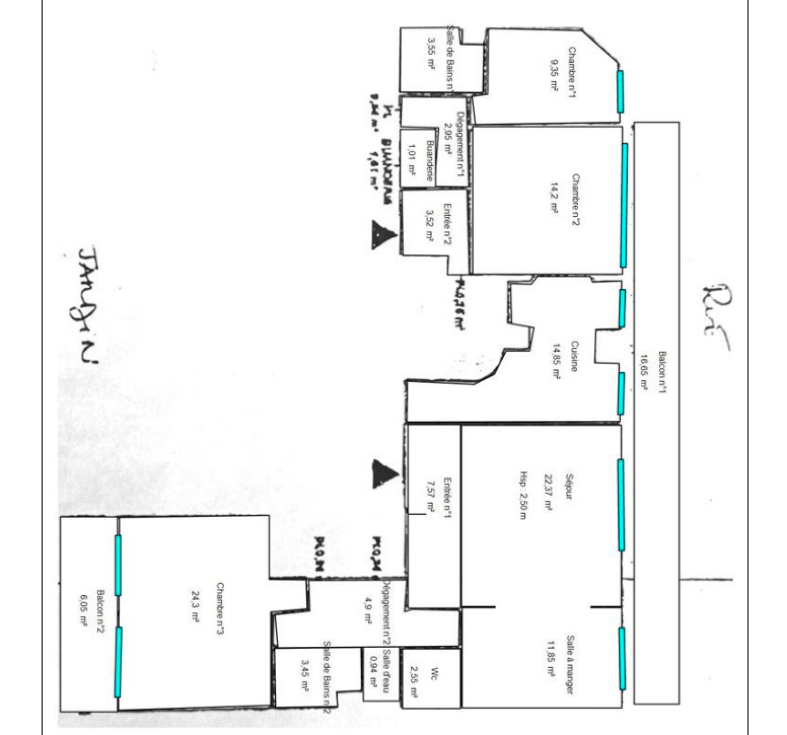
Le Groupe H&B Immobilier a le plaisir de vous présenter cet appartement traversant et familial de 127,36 m² (loi Carrez), complété par 23 m² d’espaces extérieurs. Il est situé au 1er étage avec ascenseur d’un immeuble bien entretenu.

Idéalement situé au cœur du Village Popincourt, ce bien se compose d’une entrée desservant un double séjour lumineux avec accès à un large balcon filant de 17 m², d’une cuisine indépendante, de deux chambres avec placards, ainsi que d’une suite parentale de 25 m² avec accès direct à une terrasse de 6 m² donnant sur un jardin arboré.
L’appartement comprend également deux salles de bains, une salle d’eau et deux WC. De nombreux placards intégrés dans les couloirs permettent d’optimiser les espaces de rangement.

APPARTEMENT À FORT POTENTIEL !

Actuellement configuré en 5 pièces avec 3 chambres, ce bien offre la possibilité de créer une quatrième chambre, idéal pour répondre à différents projets de vie (famille, télétravail, etc.).

Le bien est complété par deux caves.

Une place de parking est disponible en sus.

L’emplacement est particulièrement recherché, à proximité immédiate des transports avec les stations Saint-Ambroise (ligne 9), Richard-Lenoir (ligne 5) et Chemin Vert (ligne 8). Toutes les commodités (commerces, écoles, restaurants) sont accessibles à pied.

Des travaux de réfection complète des paliers d’étage ont été votés et intégralement payés. Ravalement fait en 2023

H&B Immobilier, immatriculée au RCS de Paris sous le numéro 882 014 889. Les informations sur les risques auxquels ce bien est exposé sont disponibles sur le site géorisques.gouv

TRAD_ZEPHYR_Caracteristique TRAD_ZEPHYR_Valeurs
Code postal 75011
Surface loi Carrez (m²) 138 m²
Nombre de chambre(s) 4
Nombre de pièces 5
Etage 1
Ascenseur OUI
Vue Rue & Jardin
TRAD_ZEPHYR_Caracteristique TRAD_ZEPHYR_Valeurs
Nb de salle de bains 3
Nb de salle d'eau 1
Cuisine Séparée
Type de cuisine SEMI-EQUIPEE
Mode de chauffage Electrique, Electrique
Type de chauffage Panneaux rayonnant, Convecteur
Format de chauffage Collectif, Individuel
Interphone OUI
Balcon OUI
Terrasse OUI
Cave OUI
Surface cave (m²) 8
Exposition Est-Ouest
Année de construction 1977
TRAD_ZEPHYR_Caracteristique TRAD_ZEPHYR_Valeurs
Copropriété OUI
Lot n° 306-307
nombre de lots 421
Quote Part annuelle des charges 8 984 €
plan de sauvegarde NON
TRAD_ZEPHYR_Caracteristique TRAD_ZEPHYR_Valeurs
Prix de vente honoraires TTC inclus 1 100 000 €
Charges 748 €
Taxe foncière annuelle 3 318 €
DPE GES
  • Commerces et santé
  • Loisirs
  • Ecoles
  • Transports
  • Pratique
Contacter pour ce bien
L'agence
Téléphone 01 85 73 48 44
Adresse
44 rue Popincourt 75011 Paris

* Champ obligatoire

Les informations recueillies sur ce formulaire sont enregistrées dans un fichier informatisé par La Boite Immo agissant comme Sous-traitant du traitement pour la gestion de la clientèle/prospects de l'Agence / du Réseau qui reste Responsable du Traitement de vos Données personnelles. La base légale du traitement repose sur l'intérêt légitime de l'Agence / du Réseau. Elles sont conservées jusqu'à demande de suppression et sont destinées à l'Agence / au Réseau. Conformément à la loi « informatique et libertés », vous disposez des droits d’accès, de rectification, d’effacement, d’opposition, de limitation et de portabilité de vos données. Vous pouvez retirer votre consentement à tout moment en contactant directement l’Agence / Le Réseau. Consultez le site https://cnil.fr/fr pour plus d’informations sur vos droits. Si vous estimez, après avoir contacté l'Agence / le Réseau, que vos droits « Informatique et Libertés » ne sont pas respectés, vous pouvez adresser une réclamation à la CNIL. Nous vous informons de l’existence de la liste d'opposition au démarchage téléphonique « Bloctel », sur laquelle vous pouvez vous inscrire ici : https://www.bloctel.gouv.fr Dans le cadre de la protection des Données personnelles, nous vous invitons à ne pas inscrire de Données sensibles dans le champ de saisie libre.
Ce site est protégé par reCAPTCHA, les Politiques de Confidentialité et les Conditions d'Utilisation de Google s'appliquent.

Découvrir nos outils