Espace propriétaire
fr

Votre recherche

Exclusivité
Paris (75013)

3 pièces - 74 m²

Appartement- 3 Pièces - TRAVERSANT - vue dégagée

700 000 €
Ref : 1266
Découvrir le bien

EXCLUSIVITÉ ! Le Groupe H&B Immobilier a le plaisir de vous présenter ce 3 pièces traversant situé dans une copropriété de haut standing (gardien,ascenseur,jardin privatif...) il offre une vue dégagée sur les toits de Paris.

À 2 minutes à pied du metro Place d'italie

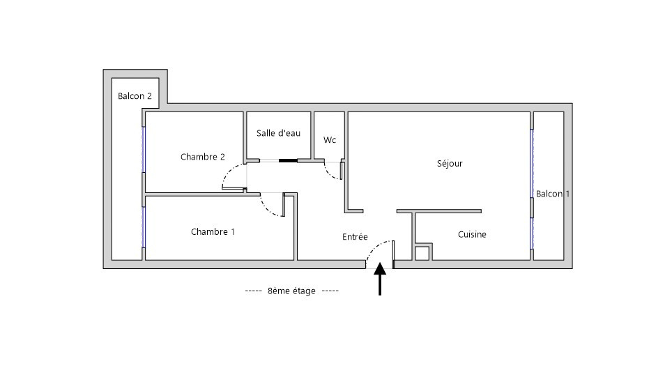
Au 8ème étage avec ascenseurs le bien se compose comme suit :

Une entrée avec de nombreux rangements donnant sur le séjour de 24m2 exposé OUEST avec balcon de 10,5m2, une cuisine semi-séparée de 8m2, 2 chambres exposées EST, reliées par un second balcon de 12,5 m2, une salle d'eau et un WC séparé.

D'une surface de 65,63m2 Loi Carrez et de 23m2 de balcon.

Dans une copropriété sécurisée avec gardien à demeure, il se situe au pied du métro place d'Italie et proche de la Butte aux Caille il est désservi par les lignes de métro 5,6,7.

Laissez- vous séduire par ce bien d'exception et sa vue à couper le souffle !

DPE: D

H&B Immobilier, immatriculée au RCS de Paris sous le numéro 882 014 889. Les informations sur les risques auxquels ce bien est exposé sont disponible sur le site géorisque.gouv.fr

TRAD_ZEPHYR_Caracteristique TRAD_ZEPHYR_Valeurs
Code postal 75013
Surface loi Carrez (m²) 65 m²
Nombre de chambre(s) 2
Nombre de pièces 3
Etage 8
Ascenseur OUI
Vue Dégagée
TRAD_ZEPHYR_Caracteristique TRAD_ZEPHYR_Valeurs
Nb de salle d'eau 1
Cuisine Américaine
Type de cuisine SEMI-EQUIPEE
Mode de chauffage Géothermie
Type de chauffage Radiateur
Format de chauffage Collectif
Interphone OUI
Visiophone NON
Balcon OUI
Terrasse NON
Murs mitoyens 1
Cave OUI
Surface cave (m²) 3
Exposition Ouest
Année de construction 1972
TRAD_ZEPHYR_Caracteristique TRAD_ZEPHYR_Valeurs
Copropriété OUI
Lot n° 8352
nombre de lots 284
Quote Part annuelle des charges 4 036 €
TRAD_ZEPHYR_Caracteristique TRAD_ZEPHYR_Valeurs
Prix de vente honoraires TTC inclus 700 000 €
Charges 350 €
Taxe foncière annuelle 1 000 €
Rez de chaussée
cuisine 8 m²

salon/sejour 24.17 m²

entrée 9.23 m²

chambre 10.91 m²

chambre 9 m²

DPE GES
  • Commerces et santé
  • Loisirs
  • Ecoles
  • Transports
  • Pratique
Contacter pour ce bien
L'agence
Téléphone 01 85 73 48 44
Adresse
44 rue Popincourt 75011 Paris

* Champ obligatoire

Les informations recueillies sur ce formulaire sont enregistrées dans un fichier informatisé par La Boite Immo agissant comme Sous-traitant du traitement pour la gestion de la clientèle/prospects de l'Agence / du Réseau qui reste Responsable du Traitement de vos Données personnelles. La base légale du traitement repose sur l'intérêt légitime de l'Agence / du Réseau. Elles sont conservées jusqu'à demande de suppression et sont destinées à l'Agence / au Réseau. Conformément à la loi « informatique et libertés », vous disposez des droits d’accès, de rectification, d’effacement, d’opposition, de limitation et de portabilité de vos données. Vous pouvez retirer votre consentement à tout moment en contactant directement l’Agence / Le Réseau. Consultez le site https://cnil.fr/fr pour plus d’informations sur vos droits. Si vous estimez, après avoir contacté l'Agence / le Réseau, que vos droits « Informatique et Libertés » ne sont pas respectés, vous pouvez adresser une réclamation à la CNIL. Nous vous informons de l’existence de la liste d'opposition au démarchage téléphonique « Bloctel », sur laquelle vous pouvez vous inscrire ici : https://www.bloctel.gouv.fr Dans le cadre de la protection des Données personnelles, nous vous invitons à ne pas inscrire de Données sensibles dans le champ de saisie libre.
Ce site est protégé par reCAPTCHA, les Politiques de Confidentialité et les Conditions d'Utilisation de Google s'appliquent.

Découvrir nos outils